
微信公众号

广东省东莞市大朗医院,位于广东省东莞市大朗镇金朗中路85号,始建于1958年7月,是一所集医疗、预防保健、科研、教学及卫生监督为一体的非营利性公立医院,是中国“爱婴医院”、广东省高等医学院校教学医院、广东省人民医院医疗合作医院、东莞市社会保险及公务员体检的定点医疗机构,深圳市社会保险定点医疗机构(全市6个)

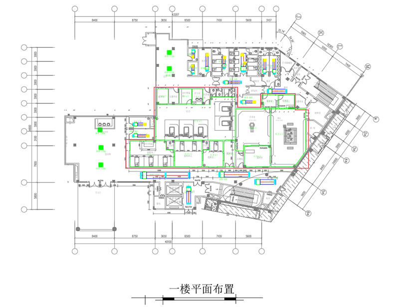
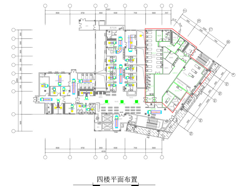
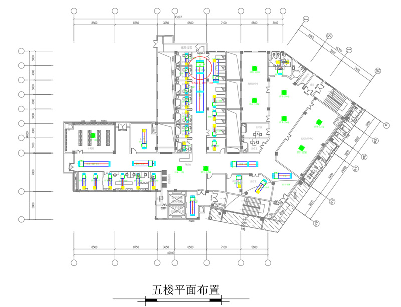
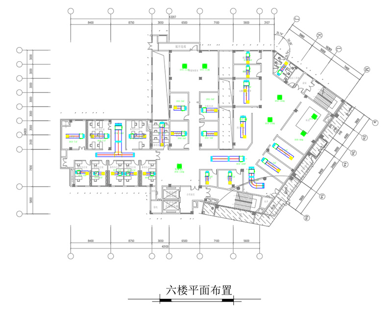
东莞市大朗医院新建综合楼空调工程,包括新建 1 栋地下 2 层、地上 7 层框架结构的门诊楼 和改造旧门诊楼及其配套连廊工程,其中总建筑面积为 11059.14 平方米,分别为地下建筑面积 1622.97 平方米和地上面积 9436.17 平方米。普通区域采用多联式中央空调,洁净手术室及特殊区域采用恒温恒湿洁净空调系统,总设计冷量达2000KW ,共计800HP中央空调。
整体设计如下:








