
微信公众号

广东省东莞市典桢机械有限公司,位于广东省东莞市大朗镇松木山祥荣路11号,成立于2008年7月31号,是一家致力于设计制造精密线束加工设备及RF自动化设备为主体的专业公司。主要产品有各类剥皮机、同轴线剥皮机、汽车线束专用剥线机 、IPEX自动线组装机 、浸锡机、PCB激光焊板机 、热缩套管机、线扣铆压机、焊接式RF自动机等,以及相关领域的非标自动化设备。产品广泛应用于移动终端、通讯设备、汽车、医疗、新能源等行业连接器及射频天线领域,先后被评为 “国家高新技术企业 专精特新中小企业”。

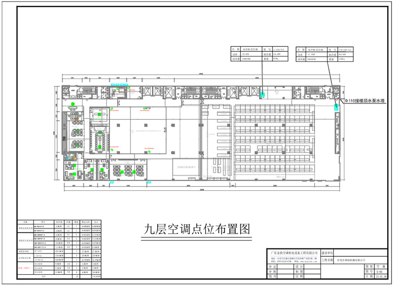
东莞市典桢机械有限公司空调工程,总建筑面积约为 3500 平方米,新厂房办公室加生产车间共一层,空调制冷面积2400平方米,其中办公室区域采用多联式中央空调;生产车间及公区区域采用水冷柜式中央空调,总设计冷量达500KW ,共计200HP中央空调,整体设计如下:


