
微信公众号
深圳市泰天达科技有限公司成立于2013年,深圳市泰天达科技有限公司江苏分公司位于江苏省苏州市吴中区,公司拥有先进的自动化生产线和完备的研发检测设备,年产值4千万元。
产品包括各类电源系统成套电缆、通讯线束、数据线束、显示方案线束等各类制成电缆,各类UL线缆、3C电缆和电源系统连接线。
公司本着质量第一的原则;客户满意为宗旨的服务态度。公司现有职员110余人,专业工程技术人员4名;高级管理人员11名。

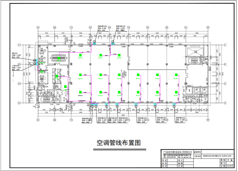
深圳市泰天达科技有限公司空调工程,新工厂总建筑面积4500平方,新厂房办公室加生产车间共一层,空调制冷面积2000平方米,办公室区域和生产车间及公区区域采用十匹一拖二中央空调,总设计冷量达300KW ,共计120HP中央空调,整体设计如下:

